荐设 谢江明作品重庆天地餐厅:“雾食”,更务实

文章图片
文章图片
文章图片
文章图片
文章图片
文章图片
文章图片
文章图片
文章图片
文章图片
文章图片
文章图片
文章图片
文章图片
文章图片
文章图片
文章图片
文章图片
文章图片
文章图片
文章图片
文章图片
文章图片
文章图片
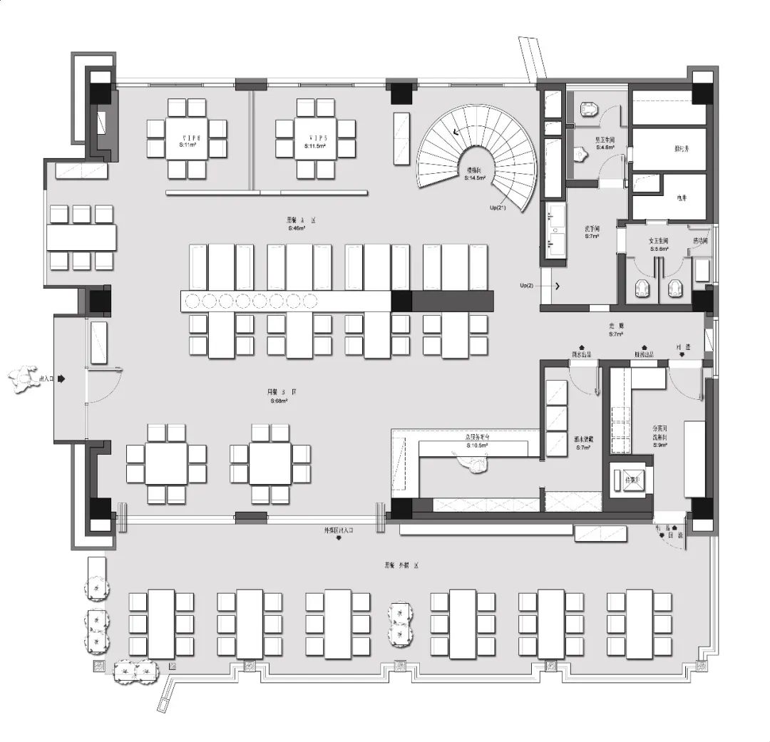
本案位于重庆天地 , 得益于优越的重庆地理符号 , 设计师从空间在地性、多元的客群、空间与受众群体的互动关系等多方面思考 , 呈现了一间自然温暖、市井文化与时尚元素并存、极具包容性的【雾食】餐厅 。
雾食 , 饮食传承
务食 , 真材实料
务实 , 空间设计
——设计师谢江明
01
地理位置
Project Status
重庆天地由高低村落、文化剧场、吊脚楼等建筑群落组成 , 尽显东方与西方的艺术融合 。 汲取重庆浓郁丰富的山水文化 , 深厚的人文内涵 , 绵长的历史肌理 。 古老的山地村落、旧时的工业建筑、玻璃和钢结构的现代元素 , 表达重庆包容、开放的国际大都会气质 。
【雾食】位于重庆天地商业街区10幢 , 优越的嘉陵江风光、中高端住宅群奠定了餐厅的都市气质 。 空间建筑外立面呈民国风性 , 内部方正通透 , 设计师从务实的设计手法出发 , 改善原空间缺少趣味性的问题 , 从材质、形式、视觉上全新勾勒空间动线 , 为顾客创造一个在出世与入世间自由穿行的渝菜餐厅:与友相聚、享受美食、沉醉时光 , 让人身居城市得市井之便却不受市井之扰 。
推荐阅读
- 演技 用演技说话!邓伦凭优秀作品入围第六届中国电视好演员候选名单
- 猕猴桃 鹅厂招商露家底,肖战两部作品在榜,6月将迎《玉骨遥》首发预告
- 音乐人 《种子3》原创音乐扶持计划入围作品公布,原创作品创造无限可能
- 成员 INTO1新作品终于来了!五位成员表现出彩,米卡最突出
- 孙俪 东方卫视“放大招”,综艺影视作品目不暇接,有孙俪赵丽颖就稳了
- 余生请多指教 鹅厂招商露家底,肖战两部作品在榜,6月将迎《玉骨遥》首发预告
- 普通朋友 她是“好声音”选手的最大赢家 没名次没作品却转身成了总裁夫人
- 变形记 阿云嘎音乐作品抄袭?粉丝发文挽尊,原作者亲自回应秒打脸
- 郭德纲 《金牌喜剧班》班级大考落幕 作品质量持续走高
- 新生代 宝藏男孩汪苏泷自我介绍太多梗,自称出道至今没作品
