哈尔滨新闻网 消防队5分钟内抵救援地点,松北区拟建两处一级消防站

文章图片
文章图片
文章图片
【哈尔滨新闻网|消防队5分钟内抵救援地点,松北区拟建两处一级消防站】近日 , 哈尔滨市消防救援支队拟在松北区新建两处一级消防站 。 目前 , 该项目《建设项目用地预审与选址意见书》已经核发 。 该项目计划2022年2月竣工 。
目前 , 哈尔滨市松北区消防站数量不能达到辖区面积标准 , 对公共消防安全造成一定隐患 。 消防站可分为普通消防站和特勤消防站 , 其中普通消防站又可分为一级普通消防站和二级普通消防站 。 一级消防站配比6至8辆消防车 , 其执勤(辖区)范围为以接到出动指令后5分钟内消防队可以到达辖区边缘为原则确定 , 一级消防站辖区面积不宜大于7平方公里 。
科创消防站
科创一级消防站项目位于松北区规划185路与规划207路交口 , 临近商业及居住密集的老城区 。 该项目建设用地面积4502.57平方米 , 建设一级消防站建筑1栋 , 地上4层(局部1层) , 地下局部1层 , 建筑高度23.65米 , 总建筑面积3911.99平方米 。 场区内设置训练塔1座 , 岗亭1座 , 室外器械训练场、消防水池等 。
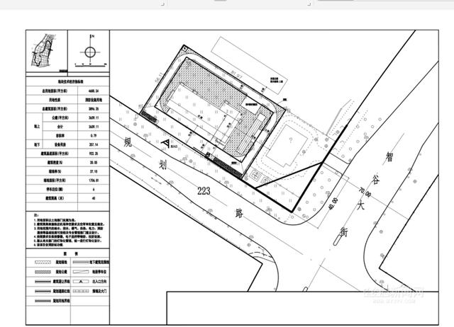
松西消防站
松西一级消防站建设项目地址拟位于松北区规划223路与智谷大街交口 。 该项目建设用地面积4600.24平方米 , 建设一级消防站建筑1栋 , 地上4层(局部1层) , 地下局部1层 , 建筑高度23.65米 , 总建筑面积3911.99平方米 。 场区内设置训练塔1座 , 岗亭1座 。 室外器械训练场、消防水池等 。
来源:哈尔滨新闻网
记者:李赫
编辑:马云鹏
推荐阅读
- 铠甲 “天舟二号”关键铠甲“哈尔滨造”
- 哈尔滨 “天舟二号”一飞冲天,关键铝材“哈尔滨造”
- 生活报 简讯丨哈尔滨化妆品安全科普周启动
- 冰视频 重要通知!10级阵风要来了,哈尔滨发布大风黄色预警
- 冰视频 请扩散!哈尔滨公布“团圆”行动免费采血点
- 黄河新闻网吕梁频道 「晋欢颜」青塘村:自力更生谋发展 产业带动致富路
- 南充新闻网 伍家坡路 共享单车“玩失踪”?原因是
- 南充新闻网 南充见APP首秀直播带货实现“开门红”
- 四川新闻网 四川5月23日新冠肺炎新增“3+1”均为境外输入
- 南充新闻网 绿色发展美好生活 南充这里举行旅游宣传
